Zum Inhalt springen
  • Lehrstuhl für Städtische Architektur
  • TUM School of Engineering and Design
  • Technische Universität München
Technische Universität München
  • LSA
  • Lehrstuhl
    • Profil
    • Team
      • Dietrich Fink
      • Anna MacIver-Ek
      • Axel Chevroulet
      • Jana Hartmann
      • Zora Syren
    • Presse
  • Forschung
    • FRAUEN BAUEN München
    • Das Erdgeschoss in der europäischen Stadt
    • Das tiefe Wohnhaus
    • Vom Nicht-Ort zum Ort
    • Agenda Vita Urbana
    • Limitrophe Räume
    • Grands Ensembles Paris
    • Strati
    • Ausverkauft
    • Anomalie Hochbunker
    • abreißen statt renovieren
    • Das hohe Haus im Block
    • Otto Steidle
    • Sozialutopie
    • 30 Wohngiganten
    • Belgrads Parasiten
    • Architektur in Bulgarien 1944-1989
    • Vertikal Erweitern
    • LaSie
    • Wachstum nach Innen
    • Kloster Raitenhaslach
    • Erhalt oder Ersatz
    • Plus-energy high-rise building
  • Publikationen
    • FRAUEN BAUEN München
    • Lehrstuhl für Städtische Architektur 2004-2024 Dietrich Fink
    • Rosa Reihe Rom
    • Japan Exkursionsführer
    • Neues Bauen
    • Zukunft Branntweinareal München
    • Rosa Reihe Budapest
    • Rom Exkursionsführer
    • Architects on Architects
    • Otho Orlando Kurz
    • Portugal Exkursionsführer
    • Rosa Reihe Paris
    • Domestic Journal II
    • London Exkursionsführer
    • Domestic Journal
    • Ensemble Ausstellungskatalog
    • Belgien Exkursionsführer
    • Budapest Exkursionsführer
    • Bricolage - Neue Bilder für die Stadt
    • Paris - Le Havre Exkursionsführer
    • 25 Buildings of Chicago
    • Im Herzen der Stadt
    • Chicago Exkursionsführer
    • Konglomerate Häuser
    • Hannover Exkursionsführer
    • Die Dichte Stadt
    • Wien Exkursionsführer
    • Szenen dreier Häuser
    • Geschriebene Häuser
    • Architektur und Metapher
    • Beton
    • Campus
  • Archiv
    • Bachelor
      • Projekt / Thesis
        • Neues Bauen-Fassade
        • Schule für Design
        • Über den Dächern
        • Tanzhaus Berlin
        • Urbane Fragmente
        • Learning Center
        • Hospiz München
        • Olympia Museum
        • Berlin Kreuzberg
        • Gästehaus
        • Belgische Spezialitäten
        • Wohnhochhaus Leipzig
        • Filmhaus Berlin
        • Feuerwache 4
        • Maximal Wohnen
        • Berlin Block
        • Ensemble Isarwerk
        • Denkmal Maxwerk
        • Stadthaus am Gasteig
        • Stadthaus München
        • Documenta Archiv
        • Stadthotel
        • Leibniz-Salon
        • Urbane Villen
        • Heizkraftwerk Theresienstraße
        • Urbane Ecken
      • Wahlpflichtmodul
        • Systembau
        • Neues Köşk
        • Städtischer Pavillon
        • Utopian Highrise
        • Wie Wollen Wir Wohnen? II
        • Wie Wollen Wir Wohnen?
        • Häuser der Stadt - Paris 1900-1930
        • Häuser der Stadt - München der 50er und 60er
        • Fritz Peter Hans
        • Bauteile städtischer Häuser - Dächer
      • Kurzentwurf Midterm
        • Münchner Szenarien
        • Architektur und Referenz
    • Master
      • Projekt
        • Pinakothek des 21. Jahrhunderts
        • Neues Bauen-Ressourcen
        • Neues Bauen-Konstruktion
        • Kollektive Stadt
        • Über den Dächern
        • Solitäre Häuser
        • Neuer Westhafen Berlin
        • Neues Giesing
        • Kollektives Wohnen
        • Erbe Olympia
        • Zentralbibliothek Berlin
        • WOHNANLAGEN
        • Rathaus LEIPZIG
        • ERNST-REUTER-PLATZ BERLIN
        • GROSSE HÄUSER
        • RADIKAL GROSS
        • Berlin City West
        • Kosmopolis
        • BRICOLAGE
        • Wie wollen wir wohnen?
        • Hohe Häuser im Bahnhofsviertel
        • Typologien der Großstadt
      • Thesis
        • Stadtgigant TYPOLOGIE
        • Vom Nicht-Ort zum Ort
        • EUROPA
        • Limitrophe Räume
        • Das hohe Haus im Block
        • Sozialutopie
        • 31 Wohngiganten
        • Genossenschaft
        • Hybrid House
        • Tanzspeicher Hamburg
        • Chicagoism
        • Hohe Häuser im Bahnhofsviertel
      • Wahlpflichtmodul
        • Fotografie für Architekten
        • Architektur und Referenz
        • Frauen Bauen München
        • Systembau
        • vGL&vdM
        • Workshop CHRISTIAN INDERBITZIN
        • Workshop ADAM KHAN
        • Workshop 2A+P/A
        • Workshop JOB FLORIS
        • Otho Orlando Kurz
    • Diplom
      • Entwurf
        • BRICOLAGE
        • Wie wollen wir wohnen?
        • Hohe Häuser im Bahnhofsviertel
        • Typologien der Großstadt
        • Neue alte Häuser
        • Im Herzen der Stadt
      • Ergänzungsfach
        • Fritz Peter Hans
      • Kurzentwurf
        • Der gescannte Raum
        • Stadt Raum Fluss
        • Durand Durand
        • Konglomerate Häuser
        • Szenen eines Hauses
        • Collage City
      • Diplom
        • Maison du Peuple
      • Sonderdiplom
        • Eine Schule in der Stadt
        • Handlungslücke München
        • Studienkolleg
    • Vorlesungen
      • So 2023
      • Wi2022/23
      • So 2022
      • Wi 2021/22
      • So 2021
      • Wi 2020/21
      • So 2020
      • Wi 2019/20
      • So 2019
      • So 2018
      • Wi 2017/18
      • So 2017
      • Wi 2016/17
      • Wi 2015/16
      • So 2015
      • Wi 2014/15
      • So 2014
      • Wi 2013/14
    • Exkursionen
      • 2022 - Rom
      • 2019/20 - Schweiz MA
      • 2018/19 - Berlin MA
      • 2018/19 - Berlin BA
      • 2018 - Portugal
      • 2017/18 - Leipzig
      • 2017 - London
      • 2016 - Belgien
      • 2015/16 - Berlin
      • 2015 - Budapest
      • 2014 - Paris - Le Havre
      • 2013 - Chicago
      • 2012/13 - Hannover
      • 2012 - Wien
      • 2007/08 - Zürich Basel Ulm
      • 2005 - Zagreb Ljubljana
    • Stadtspaziergänge
      • Hofstatt
      • Borstei
      • Neuhausen
      • Alte Heide
      • Maxvorstadt
    • Tagesexkursionen
      • HfG Ulm
      • Schneefernerhaus
      • Stuttgart
      • Spitzingsee
      • Kassel
    • Ausstellungen
      • 2023: Neues Giesing
      • 2022: Podiumsdiskussion INTERIM I PERMANENT
      • 2022: Neues Kösk
      • 2021: MA Thesis EUROPA
      • 2021: Neues Giesing
      • 2021: Städtischer Pavillon
      • 2018: BA Abschlussarbeiten
      • 2017: Jahresschau
      • 2016: Jahresschau
      • 2016: Berlin City West
      • 2015: Ensemble
      • 2015: Jahresschau
      • 2015: Bricolage
      • 2014: Jahresschau
      • 2014: A6 - dicht säen
      • 2009: Zukunft findet Stadt
      • 2008: A4 - Zeitmaschine Architektur
    • Gastprofessuren
      • Sebastian Multerer
      • Lisa Yamaguchi
      • Ulrike Fukas
      • Fritz Auer
      • TEd'A Arquitectes
      • Christian Inderbitzin
      • fala atelier
      • Matthias Castorph
      • Beigel / Christou
      • Björn Martenson
      • Sauter von Moos
      • Adam Khan
      • Maria Conen
      • 2AP+A/P
      • Lütjens/Padmanabhan
      • Job Floris
    • Gastkritiker
    • Gastvorträge
      • Jórunn Ragnarsdóttir
      • Andreas Putz
      • Andreas Lepik
      • Fuminori Nousaku
      • Sophie Reiner
      • Marc Frohn
      • Kyung-Ae Kim
      • Anne Femmer
      • Sebastian Kofink
      • Helga Blocksdorf
      • Michaela Türtscher
      • Jürg Graser
      • Sebastian Multerer
      • Lisa Yamaguchi
      • Christoph Wagner
      • Tim Heide
      • Anne-Julchen Bernhardt
      • Fritz Auer Lebenswege
      • Andreas Garkisch
      • Johannes Ernst
      • Christian Hadaller
      • Kilian Stauss
      • Fritz Auer
      • Andrea Gebhard
      • Christian Inderbitzin
      • fala atelier
      • Bernd Schmutz
      • Björn Martenson
      • Sauter von Moos
      • Gesine Weinmiller
      • Adam Khan
      • Meinrad Morger
      • Tim Heide
      • Dirk Sommers
      • 2A+P/A
      • Lütjens Padmanabhan
      • Thomas Padmanabhan
      • Piero Bruno
      • Lütjens Padmanabhan
      • Oliver Lütjens
      • Oliver Lütjens
      • Pezo von Ellrichshausen
      • Dieter Eckert
      • Barbara Strub
      • Marco Zünd
      • Scheidegger Keller
      • Aita Flury
      • Charles Pictet
      • Florian Fischer
      • David Levain
      • Doris Zoller
      • Andreas Garkisch
      • Axel Fickert
      • Arno Brandlhuber
    • Studentische Erfolge
  • Kontakt
  1. LSA
  2. Archiv
  3. Master
  4. Projekt
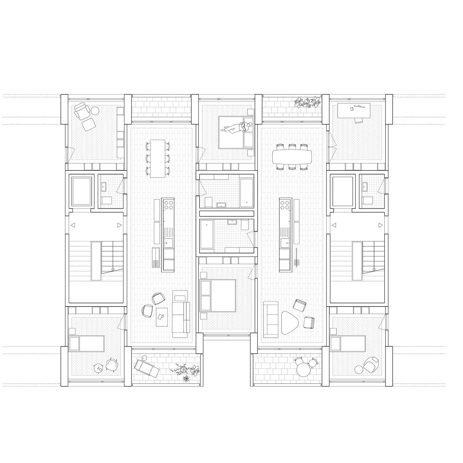
  5. Erbe Olympia
Erbe Olympia
Jonatan Anders . Franziska Mühlbauer
Jonatan Anders . Franziska Mühlbauer
Jonatan Anders . Franziska Mühlbauer
Jonatan Anders . Franziska Mühlbauer
Jonatan Anders . Franziska Mühlbauer
Jason Textor . Vincenzo Pagano
Jason Textor . Vincenzo Pagano
Jason Textor . Vincenzo Pagano
Jason Textor . Vincenzo Pagano
Jason Textor . Vincenzo Pagano
Friederike Schneider . Nadine Sturm
Friederike Schneider . Nadine Sturm
Friederike Schneider . Nadine Sturm
Friederike Schneider . Nadine Sturm
To top
  • Datenschutz
  • Impressum
  • Barrierefreiheit