Zum Inhalt springen
  • de
  • en
Menü
Technische Universität München
  • Lehrstuhl für Raumkunst und Lichtgestaltung
  • Fakultät für Architektur
  • Technische Universität München
  • Startseite
  • Lehre
    • Profil
    • Lehrverzeichnis
    • Bachelorstudiengang
    • Masterstudiengang
    • Dokumentation
    • Anerkennung
  • Forschung
  • Labor
  • Team
  • Netzwerk
  • Event
  • Service
  • About
Technische Universität München
  • Lehrstuhl für Raumkunst und Lichtgestaltung
  • Fakultät für Architektur
  • Technische Universität München
  1. Startseite
  2. Lehre
  3. Anerkennung
  4. 01
1 von 3
2 von 3
3 von 3

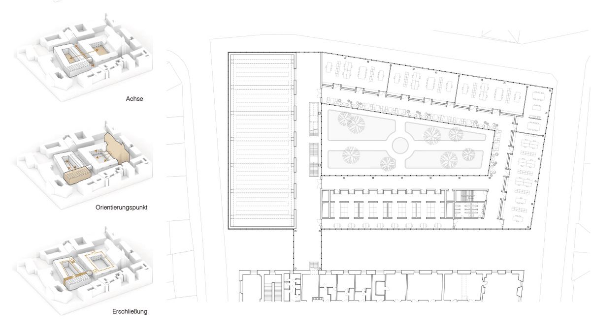
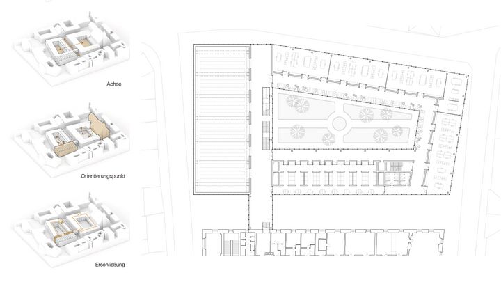
Projekt von Ruiqi Wang und Yinzhe Zhang

To top
-
  • Datenschutz
  • Impressum
  • Barrierefreiheit