Kontakt


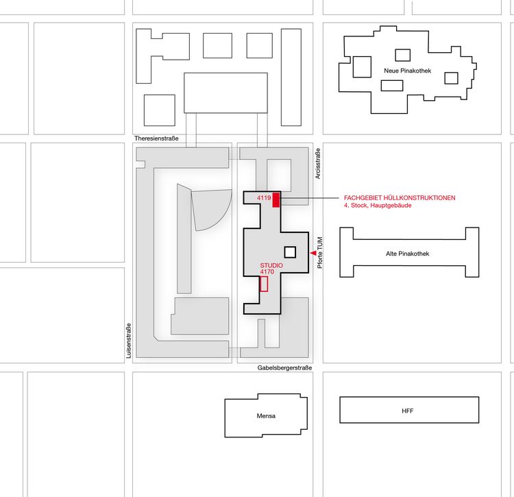
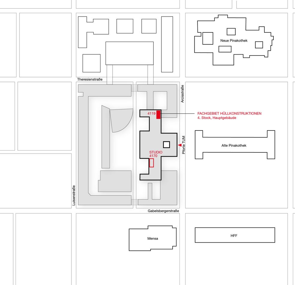
Technische Universität München
Fakultät für Architektur
Professur für Entwerfen und Gebäudehülle
Arcisstr. 21
80333 München

Raum 4119

+49.89.289.28699
info(at)hk.ar.tum.de
Di, Mi, Do 9 - 12 und 14 - 17 Uhr

Unsere Räume befinden sich im 4. Obergeschoss direkt neben dem Nordtreppenhaus des Hauptgebäudes der TUM an der Arcisstraße 21.